malý velký dům

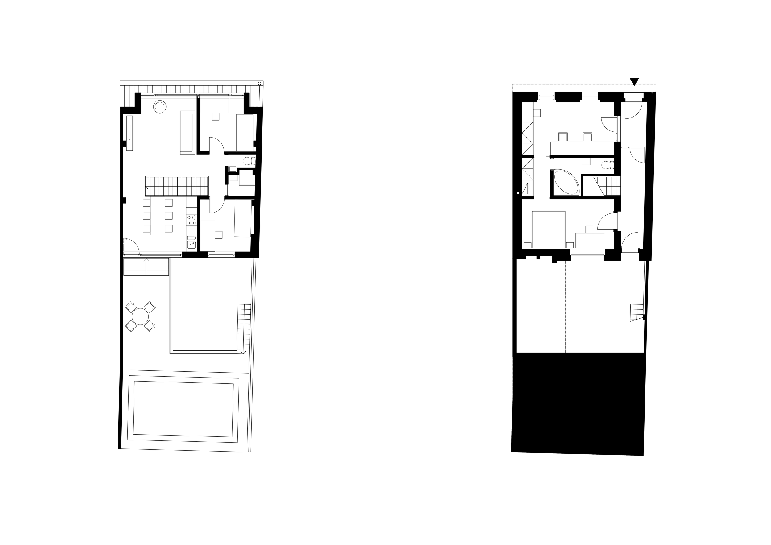
I malý dům může rodině nabídnout rodině vše co potřebuje. V přízemí je dost místa pro kancelář, ložnici i koupelnu. V podkroví jsou dva pokojíky. Hlavní obytný prostor propojuje klidnou předzahrádku s dvorkem.

Next
Next

tenký dům